مبخر غلافي أنبوبي Shell-and-Tube Evaporator
طلب عرض سعر
الموقع الإلكتروني: http://chillers-ae.com/7-shell-and-tube-evaporator.html
يصنع المبخر الأنبوبي من الفولاذ المقاوم للصدأ المتين، مما يوفر مقاومة للتآكل وقوة ميكانيكية عالية. وهو مصمم خصيصاً للاستخدام مع الوسائط النظيفة أو المسببة للتآكل. يتميز المبخر ببنية مدمجة، وكفاءة عالية في نقل الحرارة، وقدرة تحمل ضغط عالية، مما يجعله واسع الاستخدام في الصناعات التي تتطلب معايير نظافة صارمة، مثل الصناعات الدوائية والغذائية والكيميائية. وباعتباره مكون رئيسي عالي الكفاءة لتبادل الحرارة في المبردات ومضخات الحرارة وأنظمة تبريد العمليات، فإنه يضمن التشغيل المستقر للمعدات على المدى الطويل.
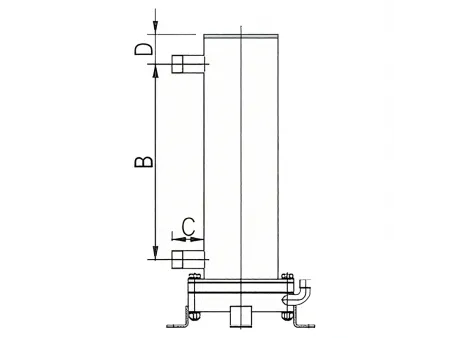
المواصفات
| نموذج مبادل حراري | قدرة الضاغط بالحصان | توصيلة أنبوب الماء | الأبعاد (مم) | |||||
| A | B | C | D | E | F | |||
| | 1HP | DN15 | 550 | 370 | 40 | 50 | 193 | 193 |
| | 2HP | DN20 | 550 | 370 | 40 | 50 | 212 | 212 |
| | 3HP | DN25 | 550 | 370 | 40 | 50 | 235 | 235 |
| | 4HP | DN25 | 550 | 370 | 40 | 50 | 255 | 255 |
| | 5HP | DN25 | 600 | 420 | 40 | 50 | 285 | 285 |
| | 6HP | DN25 | 600 | 420 | 40 | 50 | 285 | 285 |
| | 7HP | DN25 | 600 | 420 | 40 | 50 | 305 | 305 |
| | 8HP | DN25 | 650 | 475 | 40 | 60 | 305 | 305 |
| | 10HP | DN40 | 650 | 455 | 50 | 70 | 330 | 330 |
| | 12HP | DN40 | 650 | 455 | 50 | 70 | 330 | 330 |
المواصفات
| نموذج مبادل حراري | قدرة الضاغط بالحصان | توصيلة أنبوب الماء | الأبعاد (مم) | |||||||
| A | B | C | D | E | F | G | H | |||
| | 3HP | DN25 | 585 | 260 | 200 | 100 | 200 | 160 | 40 | 370 |
| | 4HP | DN25 | 585 | 260 | 200 | 100 | 200 | 160 | 40 | 370 |
| | 5HP | DN25 | 618 | 277 | 200 | 100 | 300 | 180 | 40 | 404 |
| | 6HP | DN25 | 618 | 277 | 200 | 100 | 300 | 180 | 40 | 404 |
| | 7HP | DN25 | 618 | 290 | 200 | 100 | 300 | 180 | 40 | 404 |
| | 8HP | DN25 | 708 | 290 | 200 | 100 | 350 | 180 | 50 | 475 |
| | 10HP | DN40 | 828 | 290 | 200 | 100 | 450 | 180 | 50 | 560 |
| | 12HP | DN40 | 828 | 290 | 200 | 100 | 450 | 180 | 50 | 560 |
| | 15HP | DN40 | 1118 | 290 | 200 | 175 | 600 | 180 | 50 | 860 |
| | 20HP | DN50 | 1603 | 277 | 200 | 275 | 900 | 180 | 65 | 1320 |
| | 25HP | DN50 | 1603 | 290 | 200 | 275 | 900 | 180 | 65 | 1320 |
المواصفات
| نموذج مبادل حراري | قدرة الضاغط بالحصان | توصيلة أنبوب الماء | الأبعاد (مم) | |||||||
| A | B | C | D | E | F | G | H | |||
| | 4HP*2 | DN25 | 708 | 290 | 200 | 100 | 350 | 160 | 50 | 475 |
| | 5HP*2 | DN25 | 828 | 290 | 200 | 100 | 450 | 190 | 50 | 560 |
| | 6HP*2 | DN25 | 828 | 290 | 200 | 100 | 450 | 160 | 50 | 560 |
| | 7,5HP*2 | DN25 | 1118 | 290 | 200 | 175 | 600 | 190 | 50 | 860 |
| | 10HP*2 | DN40 | 1603 | 277 | 200 | 275 | 900 | 180 | 65 | 1320 |
| | 12HP*2 | DN40 | 1603 | 290 | 200 | 275 | 900 | 180 | 65 | 1320 |
| | 15HP*2 | DN40 | 1603 | 290 | 200 | 275 | 900 | 180 | 65 | 1320 |
| | 20HP*2 | DN50 | 1615 | 365 | 280 | 275 | 900 | 200 | 65 | 1320 |
| | 25HP*2 | DN65 | 1615 | 436 | 320 | 275 | 900 | 280 | 65 | 1320 |
| | 30HP*2 | DN65 | 1650 | 477 | 320 | 275 | 935 | 280 | 100 | 1335 |
المواصفات
| نموذج مبادل حراري | قدرة الضاغط بالحصان | توصيلة أنبوب الماء | الأبعاد (مم) | |||||||
| A | B | C | D | E | F | G | H | |||
| | 5HP*3 | DN40 | 1118 | 290 | 200 | 175 | 175 | 180 | 50 | 860 |
| | 10HP*3 | DN50 | 1615 | 365 | 250 | 275 | 275 | 200 | 65 | 1320 |
| | 12HP*3 | DN50 | 1615 | 365 | 250 | 275 | 275 | 200 | 65 | 1320 |
| | 20HP*3 | DN65 | 1650 | 477 | 320 | 275 | 275 | 280 | 100 | 1335 |
| | 25HP*3 | DN65 | 2315 | 477 | 320 | 275 | 275 | 280 | 100 | 1865 |
المواصفات
| نموذج مبادل حراري | قدرة الضاغط بالحصان | توصيلة أنبوب الماء | الأبعاد (مم) | |||||||
| A | B | C | D | E | F | G | H | |||
| | 10HP*4 | DN50 | 1612 | 453 | 320 | 250 | 859 | 280 | 100 | 1160 |
| | 12HP*4 | DN65 | 1612 | 468 | 320 | 250 | 859 | 280 | 100 | 1160 |
| | 15HP*4 | DN65 | 1612 | 468 | 320 | 250 | 859 | 280 | 100 | 1160 |
| | 20HP*4 | DN80 | 2326 | 468 | 320 | 250 | 1550 | 280 | 100 | 1870 |
| | 25HP*4 | DN80 | 2578 | 468 | 320 | 250 | 1802 | 280 | 100 | 2122 |
| | 30HP*4 | DN80 | 2578 | 508 | 320 | 250 | 1802 | 280 | 100 | 2122 |
المواصفات
| نموذج مبادل حراري | قدرة الضاغط بالحصان | توصيلة أنبوب الماء | الأبعاد (مم) | |||||||
| A | B | C | D | E | F | G | H | |||
| | 12HP*5 | DN65 | 1612 | 482 | 320 | 250 | 859 | 280 | 100 | 1160 |
| | 25HP*5 | DN100 | 2578 | 588 | 400 | 350 | 1802 | 350 | 350 | 2122 |
| | 25HP*6 | DN100 | 3128 | 588 | 400 | 350 | 1802 | 350 | 350 | 2672 |
منتجات أخرى

