آلة حفر الأنفاق والمناجم، HT82-S (لحفر الأنفاق)
طلب عرض سعر
الموقع الإلكتروني: http://htdrilling-machine.com/1-2-3-hydraulic-drilling-jumbos.html
Hydraulic Drilling Jumbos, HT82-S
تم تصميم معدة الحفر الهيدروليكي الخاص بنا خصيصاً لأعمال الحفر الفعالة في الأنفاق الضيقة والممرات تحت الأرض ضمن المناجم المعدنية وغيرها من مشاريع الهندسة تحت السطح.
لماذا تختار معدة الحفر الهيدروليكي الخاص بنا؟
- نظام حفر هيدروليكي كامل مزود بوظيفة مدمجة لمقاومة الانحشار
- هيكل مدمج يوفر قدرة مناورة فائقة في المساحات الضيقة
- كفاءة تشغيلية وجودة إنشاء محسنة
- وحدة الحفر (وحدة ثقب الصخور/ ثقابة الصخور) C2200 / 14U
- ذراع الرافعة مع نظام دعم عائم مزدوج المثلث
- نظام تحكم لمكافحة التشويش
- الهيكل مع محرك ديزل 4 أسطوانات نوع Yanmar
- نظام التغذية
- نظام التحكم
| الموديل | HT82-S | ||
| المقطع العرضي المناسب للتطبيق | 2500x2500——3200x3200mm | ||
| الأبعاد الكلية (L×W×H) | 9900x1500x2070(2770)mm | ||
| الارتفاع عن الأرض | 310mm | ||
| الوزن الكلي | 10500kg | ||
| أدنى نصف قطر دوران | الداخلي: 2450 مم \ الخارجي: 5480 مم | ||
| القدرة على الصعود المنحدرات | 14° | ||
| السرعة | ≤4.6km/h | ||
| خيارات مطرقة الحفر | |||
| الموديل | RC2200 | YYG18U | YYG14U |
| القدرة | 21kW | 18kW | 14kW |
| التردد | 55Hz | 57Hz | 50Hz |
| الضغط | 120-220bar | 130-200bar | 130-180bar |
| نطام الدوران | مستقل | مستقل | مستقل |
| سرعة الدوران | من 0 إلى 230 دورة في الدقيقة | من 0 إلى 220 دورة في الدقيقة | من 0 إلى 220 دورة في الدقيقة |
| العزم | 720N.m | 1050N.m | 1050N.m |
| الدفع | RC2200/YYG18U/YYG14U | ||
| الطول الكلي | 4820mm | 5430mm | |
| طول عمود الحفر | 3090mm | 3700mm | |
| عمق ثقب الحفر | 2770mm | 3370mm | |
| ذراع الحفر | |||
| تمديد الذراع | 1250mm | ||
| مدى الوصول الأفقي للحفر | التغطية الكاملة للحفر | ||
| دوران الإطار المنزلق | ±180° | ||
| الرفع \ زاوية الميول) | 60° -30° | ||
| زاوية تأرجح الذراع | ±35° | ||
| نظام الماء والهواء المضغوط | |||
| أقصى معدل تدفق لمضخة المياه (12 بار) | 4m³/h | ||
| إزاحة الهواء في الضاغط | 1m³/min | ||
| نظام التشغيل الكهربائي | RC2200/YYG18U/YYG14U | ||
| القدرة الكلية | 65.5kW | ||
| قدرة المحرك الرئيسية | 55kW | ||
| الجهد القنن | 380 فولت (مخصص) | ||
| الشاسية | |||
| المحرك | محرك الديزل Yuchai | ||
| القدرة المقننة (2400 دورة في الدقيقة) | 73.6kW | ||
| العزم (من 1400 إلى 1850 دورة في الدقيقة) | 360N.m | ||
| خزان الزيت الهيدروليكي | 40 لتر | ||
الأبعاد الخارجية للحفار – منظر جانبي
نصف قطر الانعطاف/ الدوران
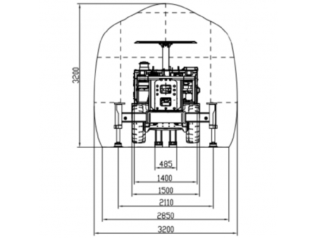
المقطع العرضي
المنتجات ذات الصلة
الاستفسار
منتجات أخرى
أحدث منتجاتنا
أجهزة قياس الطيف الضوئي للأحجار الكريمة والمجوهرات والمعادن النفيسة/ أجهزة التحليل الطيفي (أجهزة مطياف السبيكتروسكوبي)
gemtesting-ae.com
(يُدمج الفلوروبوليمر مع شبكة تقوية معدنية أو ليفية لضمان تماسك واستقرار أعلى حتى تحت أقسى ظروف التشغيل) Mesh-Reinforced Fluoropolymer Sintering
fluorocoating-ae.com
أكثر
ماكينة طباعة آلية على زجاج الأجهزة المنزلية فئة VA Automatic Screen Printing Machine for Home Appliance Glass
glassprintmachine-ae.com
منتجات أخرى
الفيديو

